Appartamento in Vendita
Venezia - S. Elena
Codice: SE98
Venezia SANT'ELENA su palazzina d'epoca, siamo a proporvi un ultimo piano di ampia metratura, (terzo), molto luminoso e arioso, immerso nel verde e affacciato su un canale.
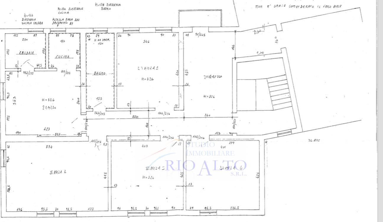
Appartamento, da restaurare, così composto:
Ampio salottino d'ingresso, cucina, sala da pranzo, dispensa, quattro camere matrimoniali, bagno e ampia terrazza al piano con vista panoramica.
Soffitta esclusiva soprastante l'unità.
Possibilità di ascensore, l'impianto esiste già manca l'apertura al piano.
Termogas autonomo
Richiesti € 600.000
Riferimento SE98
€ 600.000
Classe energetica
G
EP glnr: 200.00 kwh/m²
Informazioni immobile
Codice SE98
Contratto Vendita
Tipologia Appartamento
Regione Veneto
Provincia Venezia
Comune Venezia
Zona S. Elena
Prezzo € 600.000
Totale mq 168 mq
Camere 4
Bagni 1
Locali 8
Stato conservazione Da ristrutturare
Piano 3
Piani totali 3
Riscaldamento Autonomo
Stato attuale Libero al rogito
Balconi Presente
Terrazzo Presente
Cucina Abitabile
Arredato Non arredato
Posizione Centrale
Caratteristiche
Antenna Tv Autonoma
Bagno Principale finestrato con vasca
Nelle vicinanze
Palestra
Centro Estetico/parrucchiera
Sede Università
Complesso Sportivo
Museo
Banca
Parco Giochi
Stazione Ferroviaria
Trasporti Pubblici
Asilo
Scuole Elementari
Scuole Medie
Scuole Superiori
Bar
Uffici postali
Negozi
Uffici comunali
Vicinanza vaporetto
Vicinanza canale
Supermercato
Farmacia
Ubicazione immobile
















