Appartamento in Vendita
Venezia - Cannaregio
Codice: CG350
Venezia CANNAREGIO, a pochi passi dal PONTE DEI TRE ARCHI,
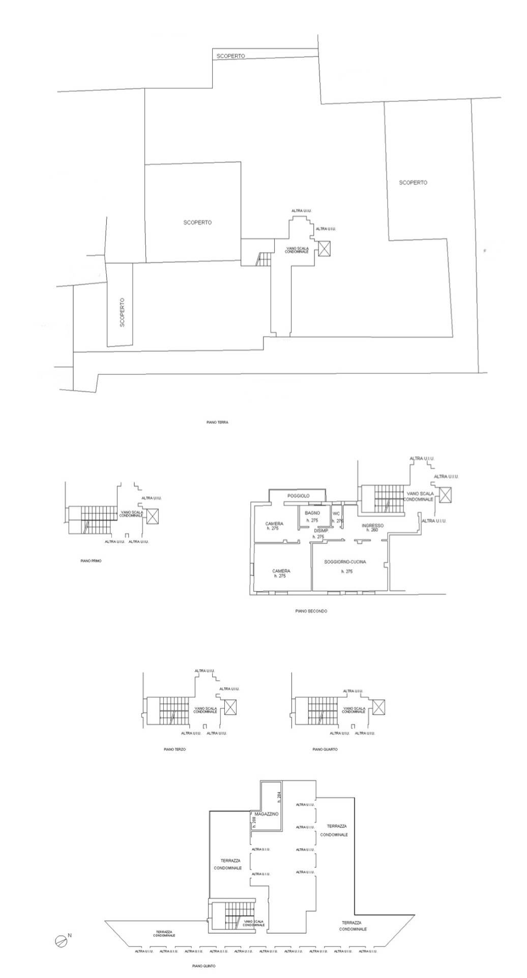
In un condominio signorile, siamo a proporvi un secondo piano con ascensore, molto luminoso, con viste aperte, in buone condizioni composto da:
Ingresso, ampio soggiorno con zona cottura, 2 camere da letto, 2 bagni e terrazza.
All'ultimo piano vi è una soffitta di proprietà esclusiva
Riscaldamento condominiale con contabilizzatori di calorie.
Aria condizionata
Richiesta € 440.000
Riferimento CG350
€ 440.000
Classe energetica
F
EP glnr: 140.21 kwh/m²
Informazioni immobile
Codice CG350
Contratto Vendita
Tipologia Appartamento
Regione Veneto
Provincia Venezia
Comune Venezia
Zona Cannaregio
Prezzo € 440.000
Totale mq 90 mq
Camere 2
Bagni 2
Locali 6
Stato conservazione Buono
Piano 2
Piani totali 5
Riscaldamento Centralizzato
Ascensore Si
Età costruzione 1960
Stato attuale Libero al rogito
Spese condominio € 250
Balconi Presente
Cucina Abitabile
Arredato Parzialmente arredato
Posizione Centrale
Caratteristiche
Antenna Tv Condominiale
Copertura ADSL
Aria Condizionata 1 split
Chiavi Ufficio Rialto
Bagno Principale finestrato con doccia
Nelle vicinanze
Palestra
Centro Estetico/parrucchiera
Sede Università
Complesso Sportivo
Museo
Banca
Parco Giochi
Stazione Ferroviaria
Trasporti Pubblici
Asilo
Scuole Elementari
Scuole Medie
Scuole Superiori
Bar
Uffici postali
Negozi
Uffici comunali
Vicinanza vaporetto
Vicinanza canale
Supermercato
Farmacia
Virtual tour immobile
Ubicazione immobile


















