Attività commerciale in Vendita
Venezia - Castello
Codice: CA545
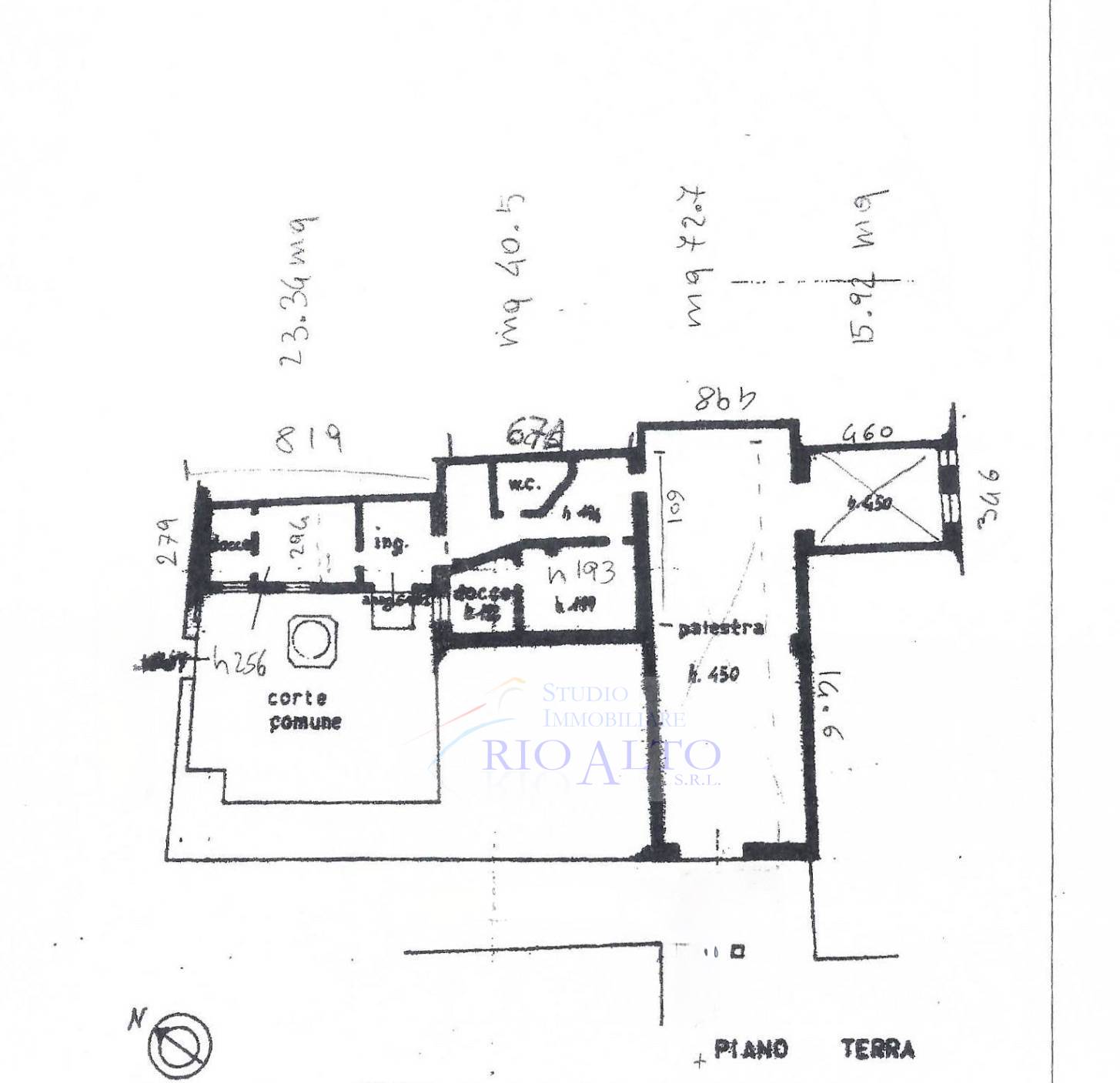
Venezia CASTELLO, a pochi passi da CAMPO SS.GIOVANNI e PAOLO siamo a proporvi un ampio spazio commerciale idoneo a essere utilizzato come palestra, studio medico o spazio polifunzionale.
Dotato d'ingresso indipendente questo immobile risulta già suddiviso in un'entrata con reception, ufficio interno, spogliatoi, servizi e quanto possa occorrere per lo svolgimento delle soprascritte attività.
€ 480.000
Riferimento CA545
€ 480.000
Informazioni immobile
Codice CA545
Contratto Vendita
Tipologia Attività commerciale
Regione Veneto
Provincia Venezia
Comune Venezia
Zona Castello
Prezzo € 480.000
Totale mq 145 mq
Stato conservazione Da ripulire
Arredato Parzialmente arredato
Posizione Centrale
Nelle vicinanze
Palestra
Centro Estetico/parrucchiera
Sede Università
Complesso Sportivo
Museo
Banca
Parco Giochi
Trasporti Pubblici
Asilo
Scuole Elementari
Scuole Medie
Scuole Superiori
Bar
Uffici postali
Negozi
Uffici comunali
Vicinanza vaporetto
Vicinanza canale
Supermercato
Farmacia
Ubicazione immobile


















