Appartamento in Vendita
Venezia, situata nel cuore del quartiere Dorsoduro, a pochi passi dalle affascinanti Zattere e da Campo San Barnaba, vi presentiamo una dimora storica che vi lascerà senza fiato.
Questa ampia e lussuosa residenza si estende su più piani, offrendoti uno spazio incantevole e unico nel suo genere. Immaginate di svegliarvi ogni mattina con una vista panoramica dei canali e dei pittoreschi tetti .
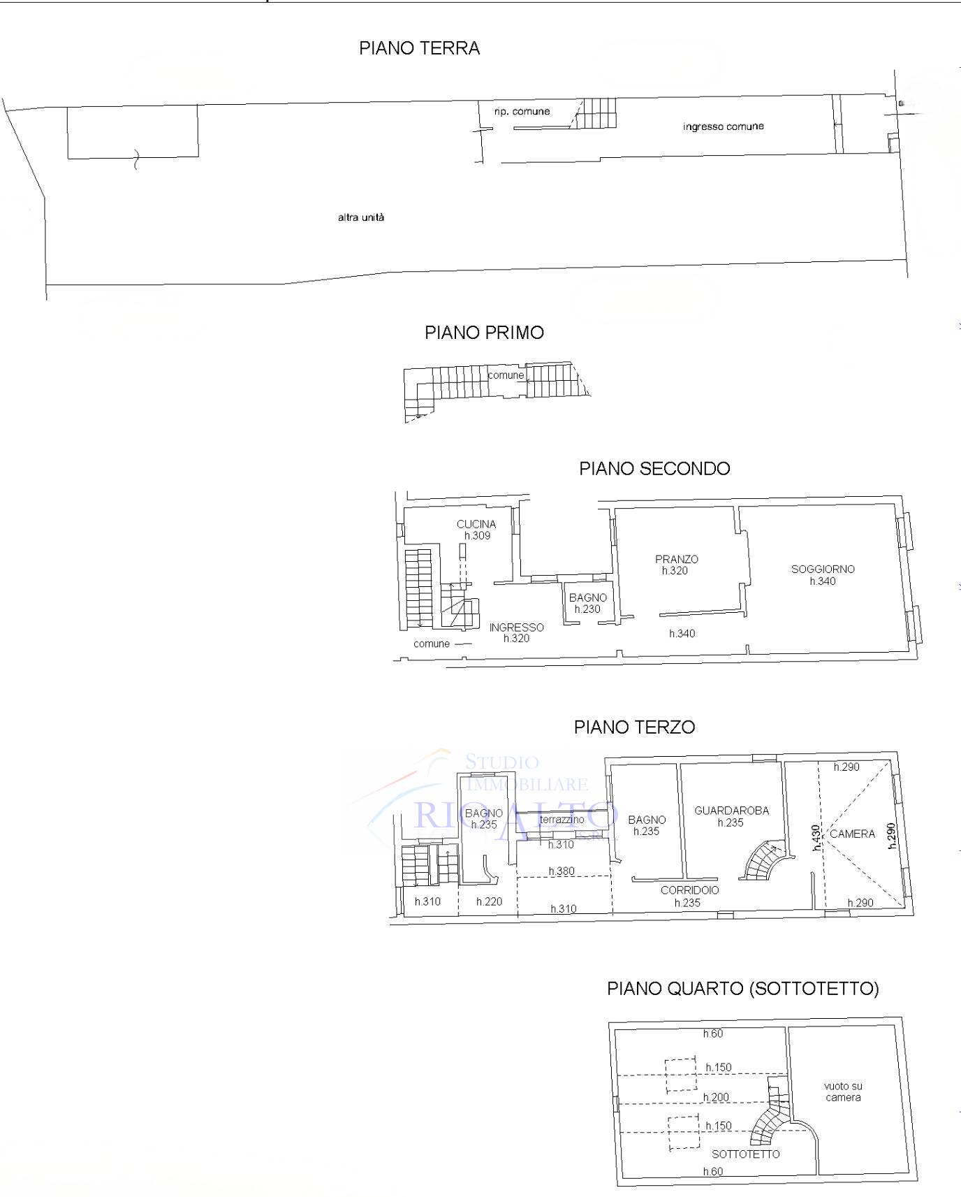
Il piano rialzato, è composto da un ufficio indipendente, dotato di una spaziosa stanza, un bagno e una stanza aggiuntiva con un romantico caminetto. C'è anche una corte esclusiva e un locale dedicato alla centrale termica.
Salendo al piano secondo, appena entrerai nello spazioso ingresso, sarai accolto da un'atmosfera di eleganza e raffinatezza, scoprirai un'accogliente cucina, ed una sala da pranzo perfetta per ospitare cene indimenticabili adiacente ad un ampio soggiorno molto luminoso dove potrai rilassarti e goderti la preziosità delle rifiniture. Un bagno rifinito con tinte dell'epoca completa questo livello.
Al piano terzo, collegato con un'elegante scala interna, troverete un salotto, due spaziose camere da letto, di cui, una attualmente adibita a guardaroba, ed una padronale aperta su tre lati.
Vi sono anche due bagni, di cui uno padronale con doppi lavelli ed una vasca idro massaggio ed ozono-terapia centrale, per assicurarti il massimo del comfort. Ma la vera chicca di questo piano è la terrazza abitabile, dove potrai goderti la vista dei tetti, oltre ad uno spazioso sottotetto mansardato che ti offrirà ancora più spazio da adattare alle tue esigenze.
Ogni dettaglio di questa dimora è stato curato con la massima attenzione. I pavimenti in seminato a calce e il caldo legno nella zona notte creano un ambiente accogliente e affascinante. Le finiture di altissimo pregio, gli splendidi serramenti, i tendaggi pregiati e le porte semicircolari in legno pregiato aggiungono un tocco di lusso e raffinatezza.
Potrete godere di comfort moderni come il termo gas autonomo e l'aria condizionata, assicurando un'esperienza di vita senza pari.
Questa dimora Veneziana è una vera gemma, e inoltre è dotata di nuove fosse settiche per un eventuale uso turistico ricettivo.
Non lasciarti sfuggire questa straordinaria opportunità di possedere una dimora storica, unica nel suo genere, sita nel cuore della zona più elegante e ricercata di Venezia.
Prezzo richiesto: € 1.850.000 per l'intera proprietà
oppure
€ 1.650.000 per la residenza
€ 200.000 per gli uffici
Contattaci oggi stesso per prenotare una visita e scoprire questa stupenda dimora senza tempo !
Riferimento: DD115
Classe energetica
EP glnr: 179.66 kwh/m²









































